Podobne oferty
WS2-DW-44373 -- || -- WS2-DW-44814 -- || -- WS2-DW-44817 -- || -- WS2-DW-44859 -- || --6
200,00
62,50
Do wynajęcia elegancki, w pełni klimatyzowany i odświeżony dom w zabudowie bliźniaczej, położony w jednej z najbardziej pożądanych lokalizacji Wilanowa — w spokojnej, kameralnej części Wilanowa Niskiego, zaledwie 400 metrów od pętli autobusowej na ul. Wiertniczej.
Nieruchomość została starannie przygotowana pod działalność biurową lub usługową. Wykończenie, układ pomieszczeń oraz otoczenie czynią ten adres idealnym dla firm ceniących prestiż, bezpieczeństwo i dyskrecję. W sąsiedztwie znajdują się ambasady, nowoczesne apartamentowce oraz eleganckie rezydencje.
Najważniejsze atuty
- 200 m² funkcjonalnej przestrzeni – układ idealny na biuro, kancelarię, studio, gabinety
- Klimatyzacja w najważniejszych pomieszczeniach
- 10 prywatnych miejsc parkingowych na ogrodzonej posesji
- Dwie bramy wjazdowe + garaż na 1 samochód
- Po generalnym remoncie – gotowy do natychmiastowego użytkowania
- Reprezentacyjna, cicha ulica zapewniająca pełen komfort pracy
- Bliskość komunikacji (Wiertnicza), usług i głównych arterii miasta
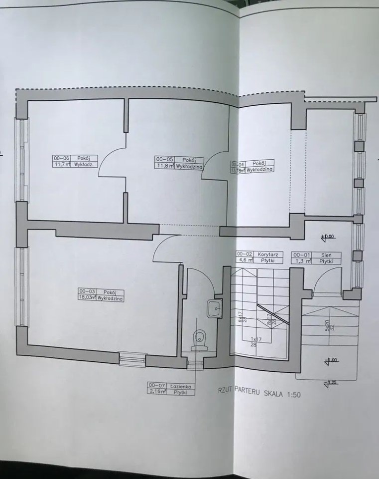
Rozkład pomieszczeń – przestrzeń zaprojektowana do pracy
Wysoki parter – strefa reprezentacyjna
-
3 duże pokoje (gabinet, sala spotkań, open space)
-
elegancki hol – idealny na recepcję
-
WC
-
przedpokój
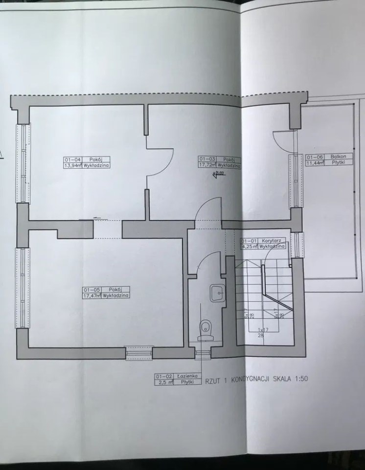
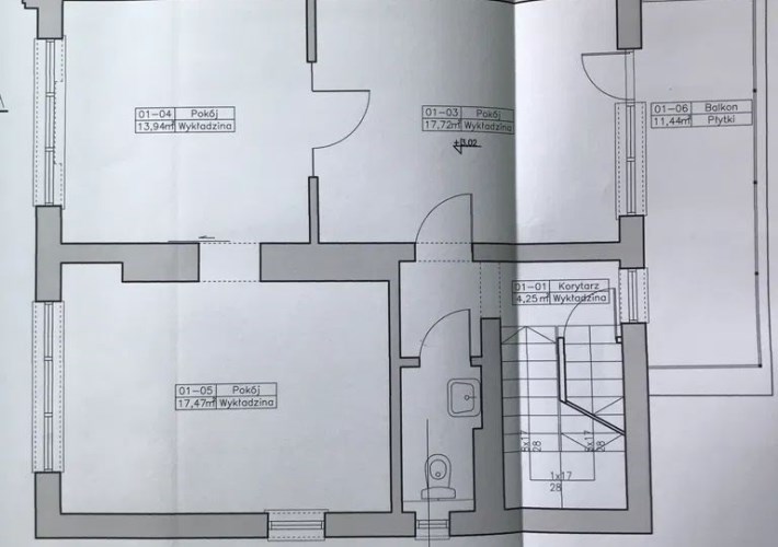
Piętro – prywatna część biurowa
-
3 jasne pokoje (gabinetowe lub pracownicze)
-
WC
-
przedpokój
Przyziemie – zaplecze techniczne i socjalne
-
w pełni wyposażona kuchnia dla zespołu
-
serwerownia / pomieszczenie techniczne
-
garaż
-
WC
-
kotłownia
-
schowek
To miejsce łączy w sobie reprezentacyjny charakter, doskonałą komunikację i komfort pracy — rzadko spotykana propozycja na rynku Wilanowa.
Wilanów Niski | 200 m² | Prestigious Location | Parking for 10 Cars**
An exceptional opportunity to lease an elegant, fully air-conditioned and recently refurbished semi-detached house, perfectly adapted for office or service-oriented use.
Located in the prestigious and tranquil area of Wilanów Niski, just 400 meters from the bus terminal on Wiertnicza Street, this property offers a rare combination of privacy, comfort and prestige.
The neighborhood is one of the most secure and desirable in Warsaw, surrounded by embassies, modern apartments and high-standard private residences — an ideal environment for companies and institutions seeking a representative and discreet address.
Key Features
- 200 m² of functional, well-designed space
- Full air-conditioning in main areas
- 10 private parking spaces on a gated property
- Two entrance gates + garage for 1 car
- Renovated and move-in ready
- Located on a quiet, elegant street in Wilanów Niski
- Excellent access to public transport and main city routes
Room Layout – Designed for Professional Use
High Ground Floor – Representative Area
-
3 spacious rooms (ideal for meeting rooms, executive offices, or open space)
-
Reception hall
-
WC
-
Hallway
First Floor – Private Office Area
-
3 bright rooms
-
WC
-
Hallway
Lower Ground Floor – Technical & Support Facilities
-
Fully equipped kitchen
-
Server / technical room
-
Garage
-
WC
-
Boiler room
-
Storage area
Nota prawna




